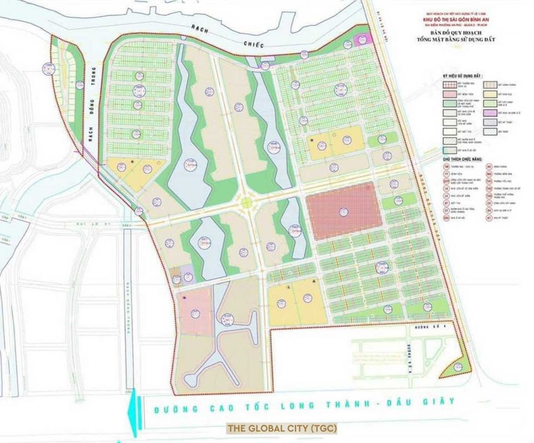
Quy mô dự án The Global City Thủ Đức

The Global City có tổng diện tích 117,4 ha với mật độ xây dựng chỉ khoảng 41%, được quy hoạch thành 2 khu chức năng chính: khu nhà ở (22 ha) và khu sân golf (92 ha).
- Khu nhà ở 22 ha bao gồm 193 căn biệt thự, nhà liền kề có sân vườn, cùng 20 tháp chung cư với khoảng 10.000 căn hộ cao cấp và 80 căn penthouse. Các căn hộ có diện tích đa dạng từ 50 – 150 m².
- Khu sân golf 92 ha được phát triển với sân golf 18 lỗ, khu nghỉ dưỡng và khách sạn 400 phòng.
Dự án có quy mô lớn, nằm cạnh sông Rạch Chiếc, mang đến cho cư dân hệ thống tiện ích nội khu cao cấp như: bến du thuyền, trung tâm thương mại, công viên cảnh quan, hồ bơi, khu thể dục thể thao, gym, spa cùng sân golf 18 lỗ hiện đại.
Với vị trí trung tâm phường An Phú, TP. Thủ Đức, cư dân The Global City còn dễ dàng tiếp cận các tiện ích ngoại khu như: chợ Thạnh Mỹ Lợi, chợ Cát Lái, Bệnh viện Đa khoa Quận 2, cùng hệ thống trường học các cấp.
Thông tin dự án The Global City Thủ Đức

Chủ đầu tư dự án The Global City là Công ty Cổ phần Đầu tư và Phát triển Sài Gòn (SDI Corp). Đơn vị phát triển dự án là Masterise Homes, còn Công ty Cổ phần Xây dựng An Phong đảm nhận vai trò tổng thầu xây dựng.
SDI Corp được thành lập ngày 21/04/1999, có trụ sở chính tại số A3, đường số 5, khu dân cư 10 ha, khu phố 3, phường An Phú, TP. Thủ Đức, TP. HCM. Doanh nghiệp có vốn điều lệ 3.845 tỷ đồng (theo thông báo thay đổi ngày 25/03/2020), do bà Mai Thị Kim Oanh (Chủ tịch HĐQT) và ông Bùi Đức Khoa (Tổng Giám đốc) đại diện pháp luật. Lĩnh vực hoạt động chính là xây dựng nhà ở các loại và kinh doanh phát triển bất động sản nhà ở.
Về nguồn gốc, Khu đô thị Sài Gòn Bình An (nay là The Global City) được UBND TP. HCM chấp thuận chủ trương đầu tư từ tháng 01/1999 cho Công ty TNHH Thương mại Xây dựng Sản xuất Thiên Hải cùng các công ty liên doanh khác, với tổng diện tích 120 ha tại phường An Phú. Đến năm 2000, dự án được bổ sung thêm tiện ích sân golf An Phú, nâng tổng diện tích lên 137 ha.
Ngày 12/01/2001, Phó Thủ tướng Chính phủ Nguyễn Công Tạn đã ban hành Quyết định số 57/QĐ-TTg về việc thu hồi và giao đất cho SDI Corp triển khai dự án.
The Global City chính thức được khởi công ngày 18/03/2021 và dự kiến hoàn thành vào 21/12/2025. Hiện tại, mức giá tham khảo trên thị trường khoảng 100 triệu đồng/m².






























